Villa ORION

  • Площадь дома — 420.80 м2
  • 5 спален и 5 санузлов
  • Просторные балконы на втором этаже
Отправить заявку

Villa ORION — дом, который создаёт пространство для семьи и личной жизни

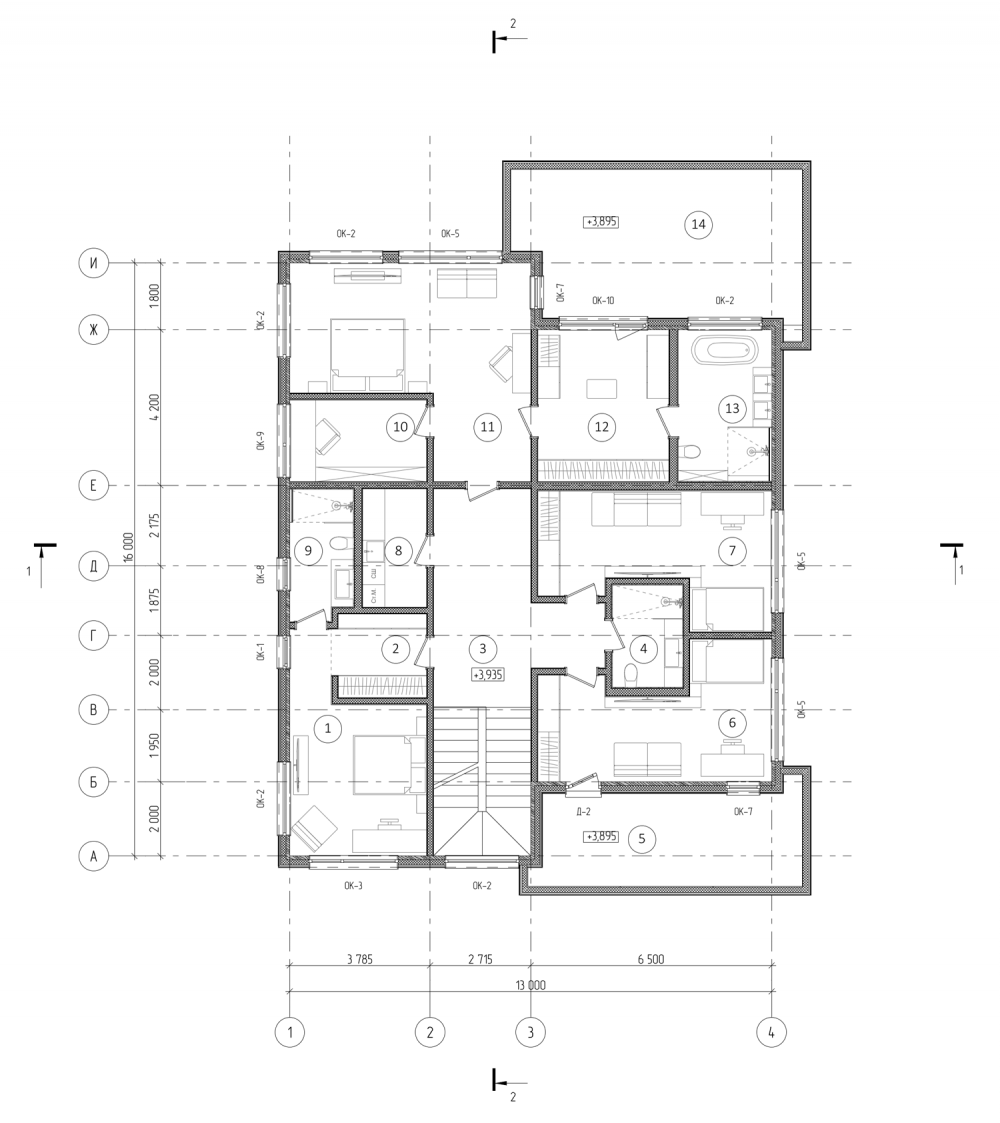
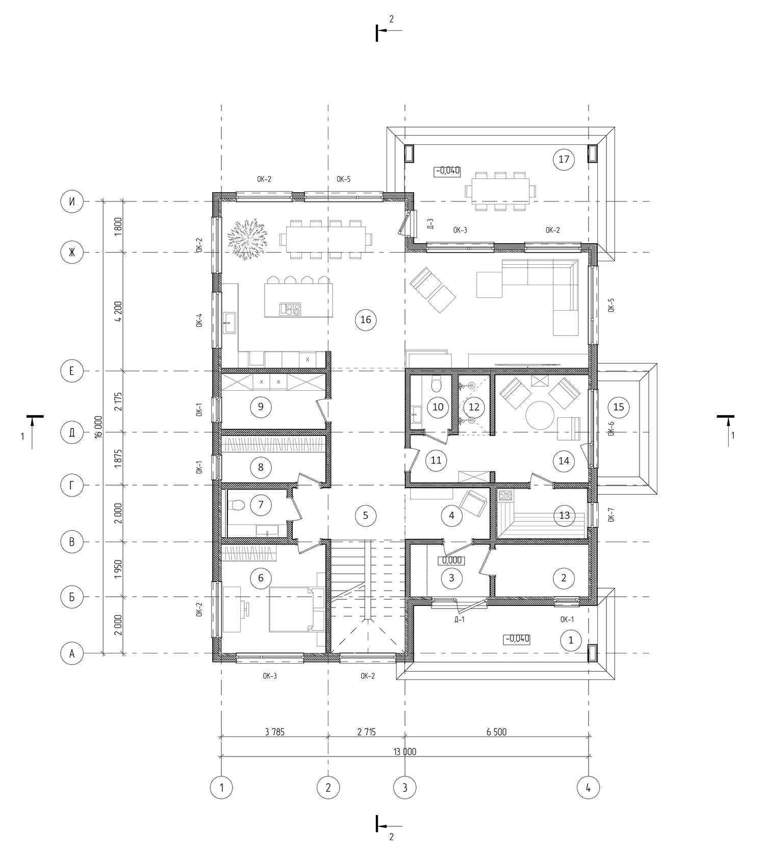
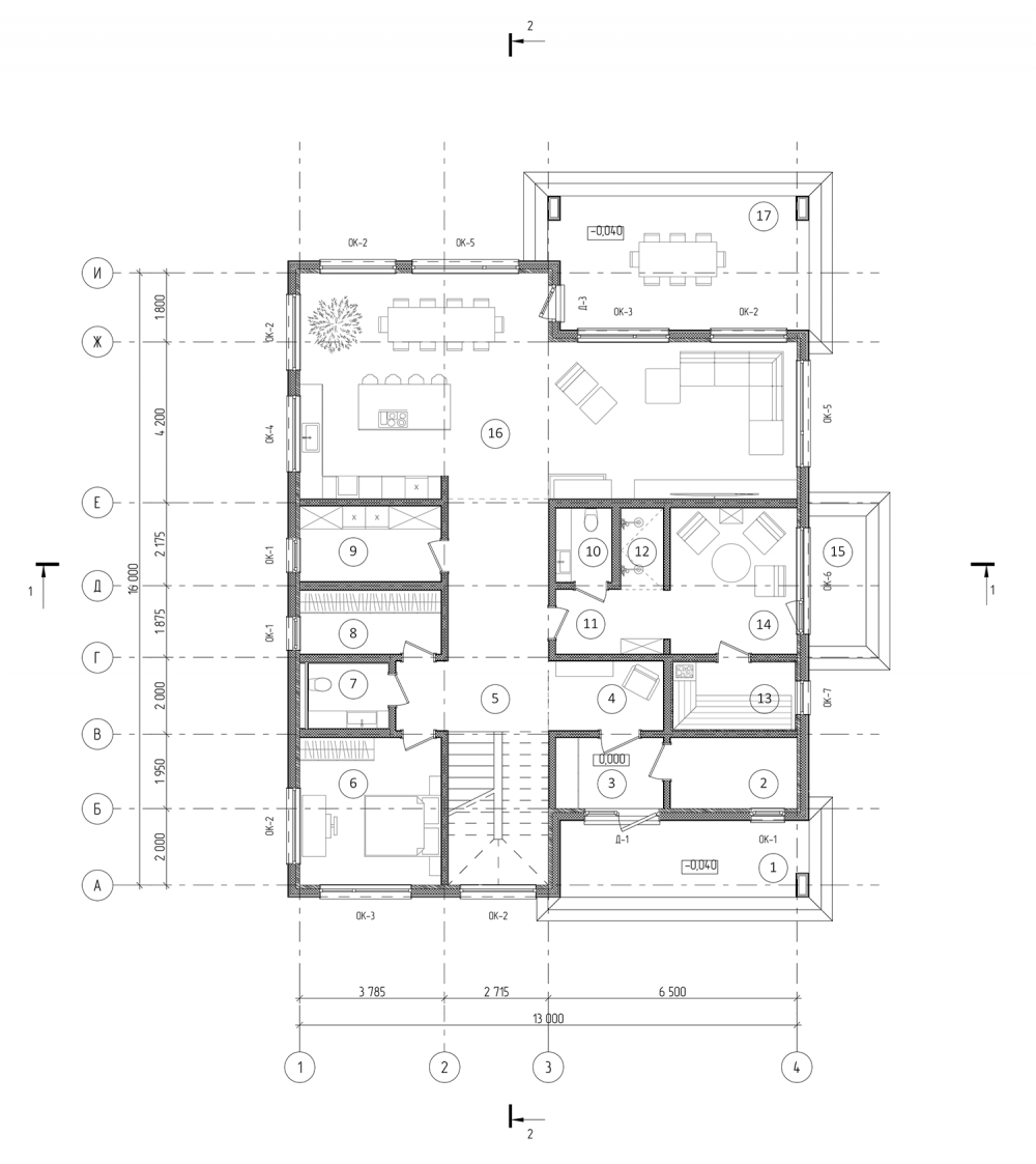
Villa ORION — современный жилой дом площадью 420,8 м², построенный из CLT-панелей с утеплением.
Технология обеспечивает высокую энергоэффективность, стабильную геометрию, долговечность и комфортный микроклимат в любое время года — без усадки и влажностных деформаций.

Планировка, продуманная до деталей

Дом разрабатывался для большой семьи, где каждому важно иметь личное пространство:

  • 2 этажа
  • 5 спален — каждая может стать личной зоной с характером
  • 5 санузлов — комфортная утренняя логистика без ожиданий
  • кабинет при спальне хозяев — тихое и изолированное рабочее пространство рядом с приватной зоной

Территория отдыха внутри дома

Villa ORION создаёт атмосферу загородного курорта прямо в жилом пространстве:

  • сауна с комнатой отдыха находится на первом этаже — удобный доступ после прогулок, тренировок или банного комплекса
  • просторные балконы на втором этаже — идеальные зоны для утреннего кофе, медитаций, занятий йогой или приватных разговоров под открытым небом

Функциональность без компромиссов

  • внутренние помещения: 331,3 м²
  • террасы и балконы: 89,5 м²
  • площадь застройки: 243,4 м²

Грамотное распределение внутренних и наружных зон позволяет дому быть одновременно масштабным и уютным — пространство работает на жизнь, а не требует адаптации под себя.

Архитектурные решения

Оставьте заявку и получите профессиональную консультацию по данному проекту!


+7 (812) 501-77-11
info@kahouse.ru
ЗАКАЗАТЬ ЗВОНОК