Villa GALANT

  • Площадь дома — 541.00 м2
  • 3 спальни и 4 санузла
  • Открытые террасы, остеклённая веранда
Отправить заявку

Villa GALANT — дом, созданный для красивой жизни и глубокого отдыха

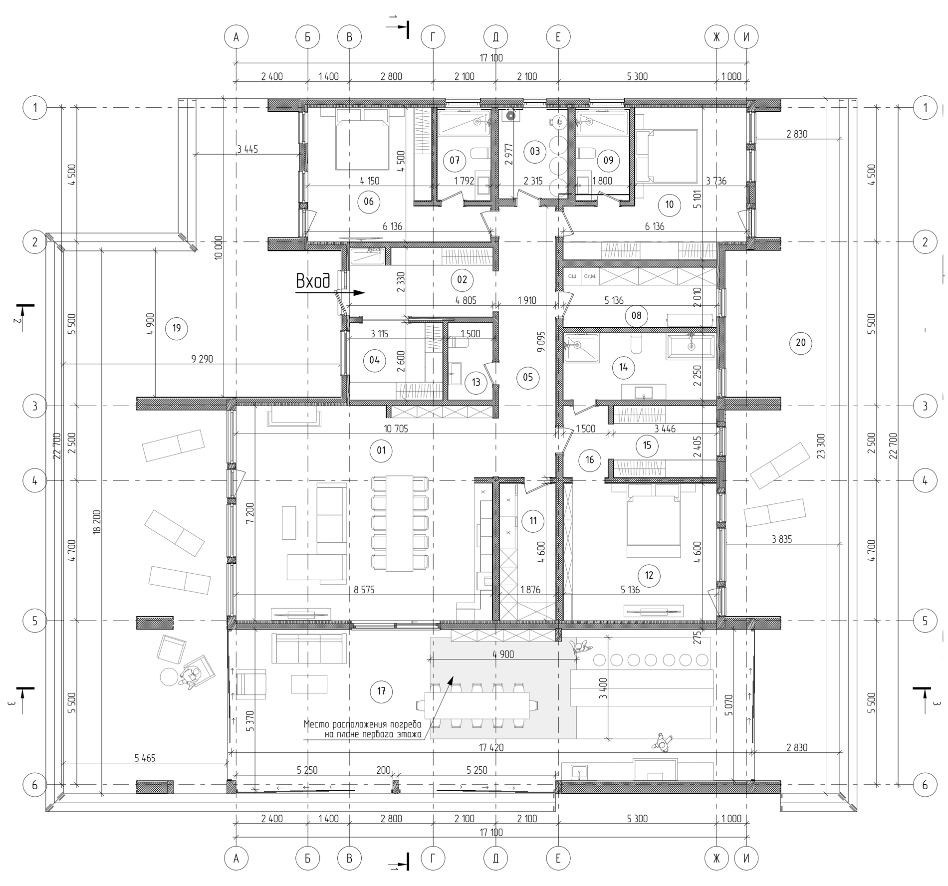
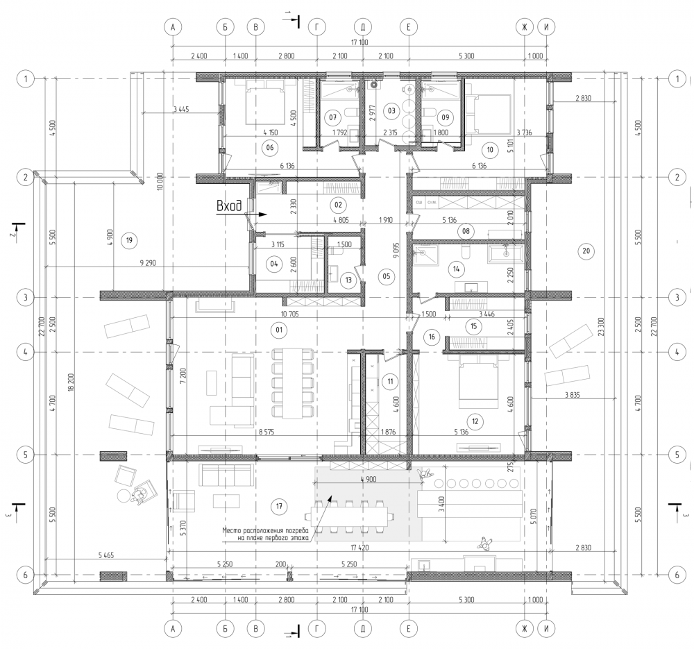
Villa GALANT — одноэтажная резиденция площадью 541 м², построенная из деревянных CLT-панелей.
Натуральная древесина, энергоэффективность и стабильная геометрия конструкции создают особую атмосферу тёплого комфорта, которая ощущается сразу при входе.

Это дом, построенный не ради квадратных метров, а ради ощущения жизни.

Архитектура, которая впечатляет и расслабляет

Геометрия фасадов, панорамное остекление и выразительные линии крыши формируют архитектуру уверенного характера.
Большие площади террас и стеклянных зон делают дом частью природного ландшафта — здесь нет жёсткой границы между интерьером и лесом, тишиной и теплом дома.

Функциональная планировка для жизни без спешки

Дом спроектирован так, чтобы каждая зона работала на комфорт семьи и гостей — без пересечения потоков и без ограничений:

  • 1 этаж — весь функционал на одном уровне
  • 3 спальни, каждая с приватностью
  • 4 санузла — продуманная логистика для повседневного использования
  • интуитивное разделение приватной и общественной частей дома

Уникальные зоны, задающие настроение

Villa GALANT — это настоящая философия отдыха и эстетики:

  • открытые террасы: 206,7 м² — пространство для вечеров на свежем воздухе, камина, лежаков, семейных обедов
  • остеклённая веранда: 90 м² — всепогодная зона отдыха с видом на природу
  • винный погреб: 13,5 м² — штрих, который делает дом по-настоящему коллекционным и личным

Здесь продумана атмосфера не только дня, но и вечера: мягкий свет, уютные фактуры, возможность уединиться и место для красивых встреч.

Баланс площади и свободы

  • Внутренняя площадь: 230,1 м² — рациональное зонирование без лишних коридоров
  • Террасы и веранда создают дополнительное «живое» пространство — дом ощущается гораздо масштабнее своих метров.

Архитектурные решения

Оставьте заявку и получите профессиональную консультацию по данному проекту!


+7 (812) 501-77-11
info@kahouse.ru
ЗАКАЗАТЬ ЗВОНОК