Villa ALEX

  • Площадь дома — 565.30 м2
  • 4 спальни и 4 санузла
  • Гараж + навес у входной группы
  • Возможность установки купели на террасе
  • Эксплуатируемая кровля
Отправить заявку

Villa ALEX — дом, где пространство работает на комфорт

Villa ALEX — частная резиденция площадью 565,3 м², созданная из CLT-панелей с дополнительным утеплением.
Конструкция сочетает впечатляющую эстетику и инженерную продуманность, обеспечивая безусадочность, энергоэффективность и абсолютный акустический комфорт круглый год.

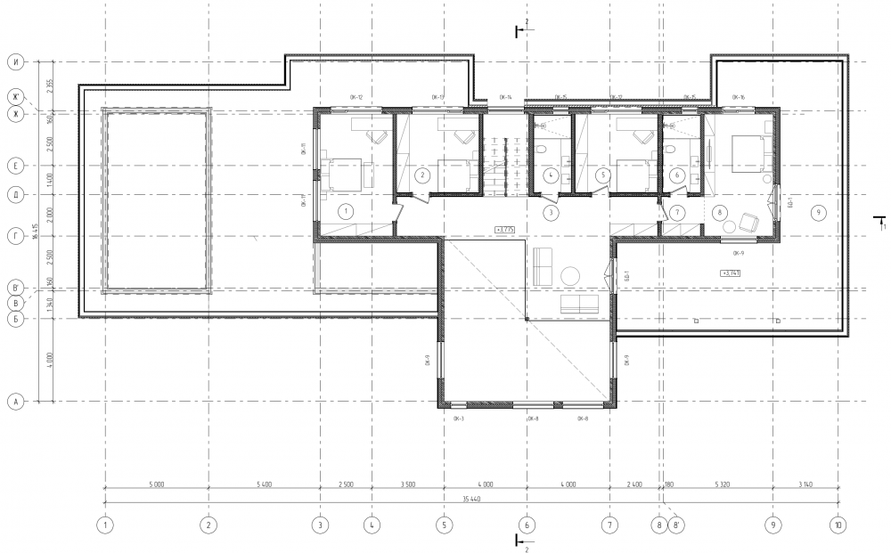
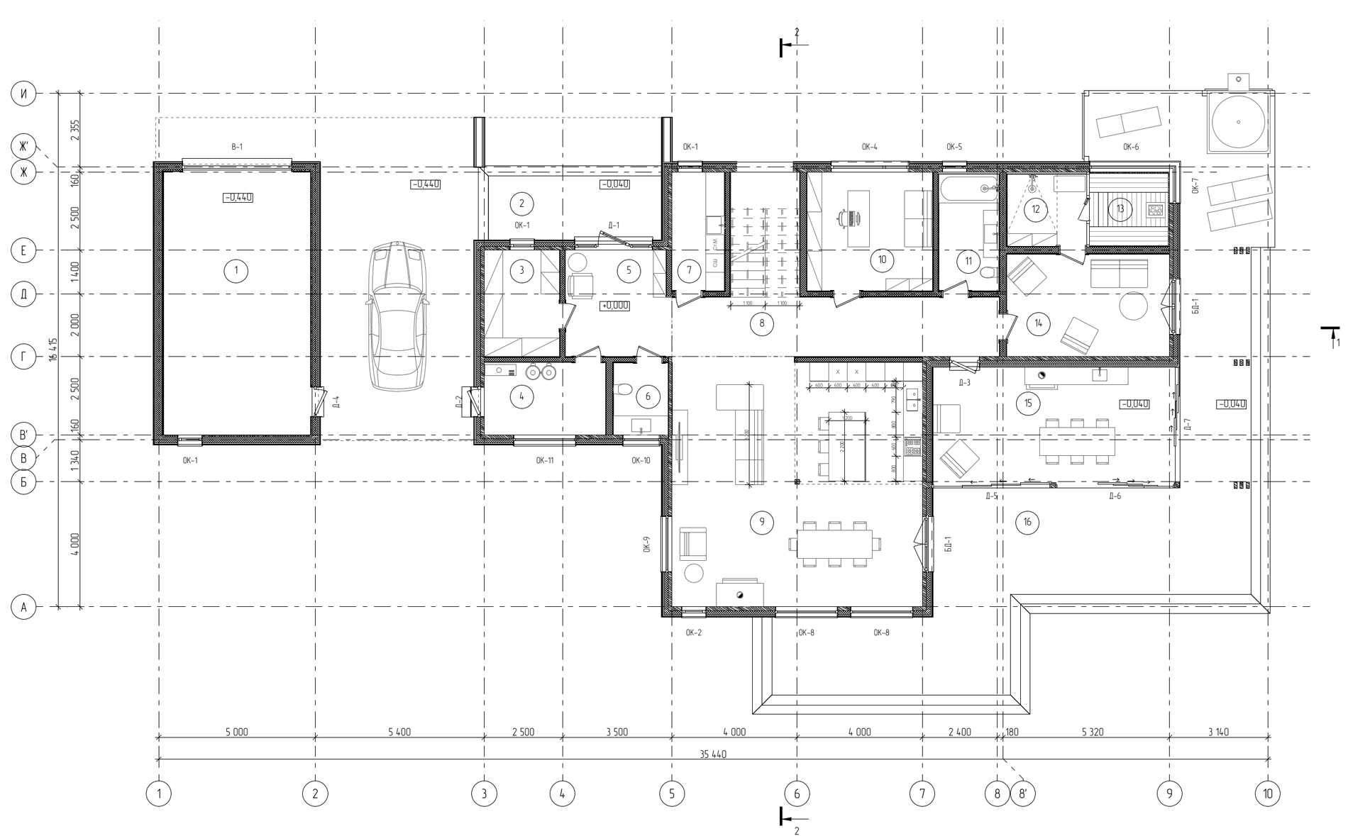
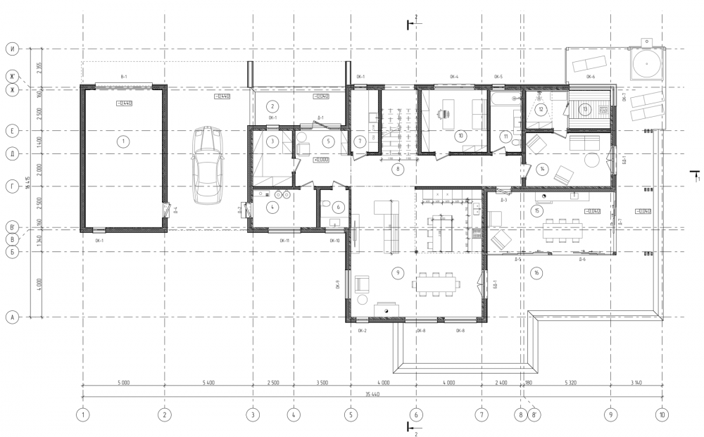
Планировочные решения

Дом спроектирован для жизни большой семьи и уединённого отдыха на своей территории:

  • 2 этажа
  • 4 спальни, каждая продумана с учётом приватности
  • 4 санузла — для максимального удобства без очередей по утрам
  • кабинет на первом этаже — идеальное рабочее пространство с видом на участок
  • второй свет в зоне гостиной — эффектная вертикальная перспектива и атмосфера открытого воздушного пространства

Зоны отдыха и удовольствия

Villa ALEX создаёт ощущение курорта на своей территории:

  • сауна с просторной комнатой отдыха
  • возможность установки купели на террасе рядом с сауной
  • веранда / летняя кухня с барбекю, расположенная непосредственно у столовой
  • эксплуатируемая кровля — большая терраса на втором этаже для солнечных завтраков, вечеринок или спокойных вечеров с видом на природу

Комфорт и быт без компромиссов

  • гараж + навес у входной группы — безопасность и удобство зимой и летом
  • продуманная площадь:
    • внутренние помещения: 378,9 м²
    • террасы, крыльца и балконы: 186,4 м²
    • площадь застройки: 253,8 м²

Архитектурные решения

Оставьте заявку и получите профессиональную консультацию по данному проекту!


+7 (812) 501-77-11
info@kahouse.ru
ЗАКАЗАТЬ ЗВОНОК